Skurvogn/Kontorvogn - 6 personer

5101 Skurvogn 2
5101 Skurvogn 1
5101 Skurvogn 3
5101 Skurvogn 4
5101 Skurvogn 6

Skurvogn/Kontorvogn - til 6 personer

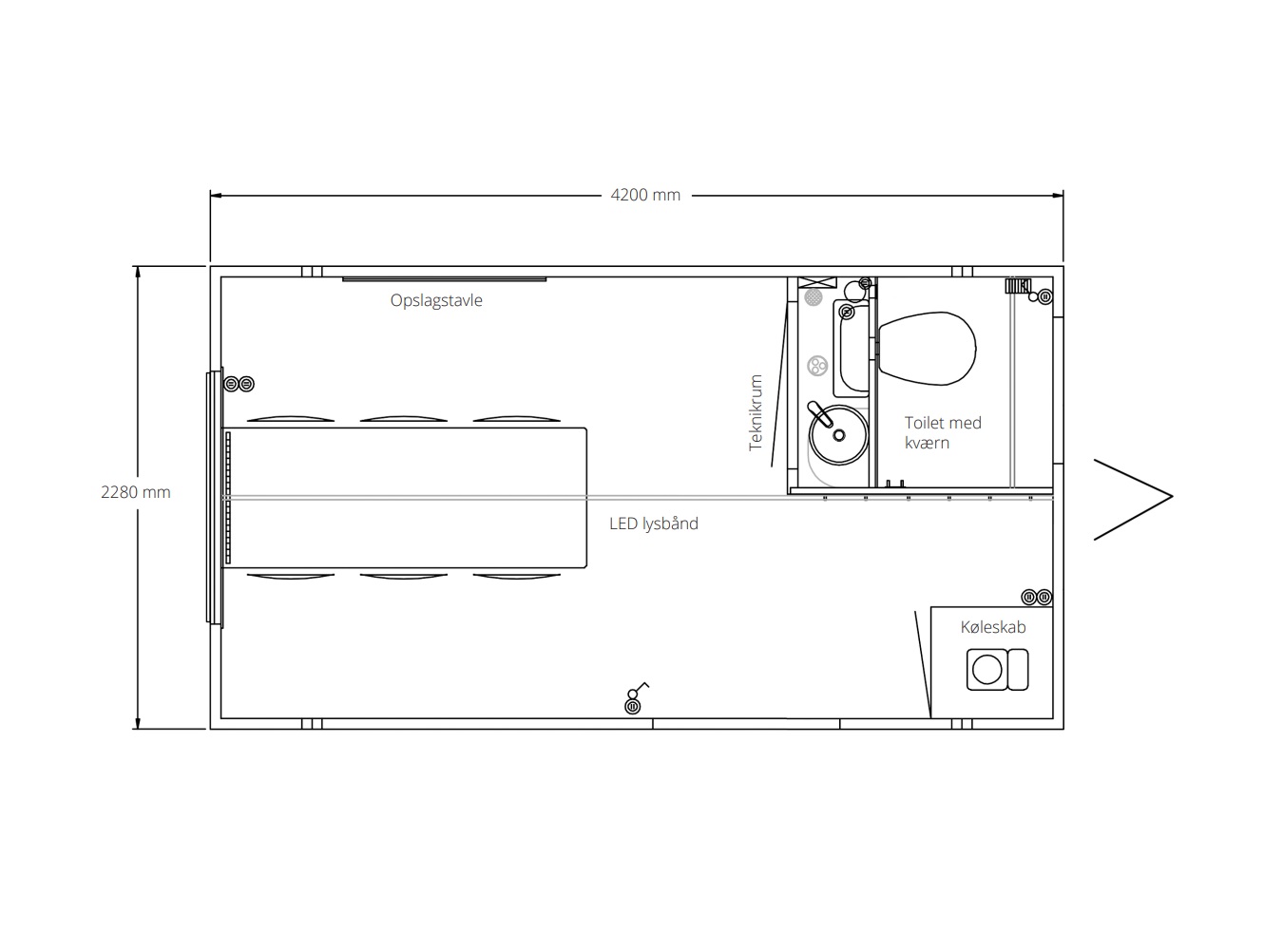
Mandskabsvogn/skurvogn/Spisevogn/kontorvogn til byggepladsen, med bord og stole til 6 personer, og derudover indeholder den et lille køleskab samt et toilet med kværn. Vi har også vogne med et lille tekøkken og kaffemaskine. 

Der medfølger op til 25 meter afløbsslange, 25 meter slange til vandtilslutning, 25 meter kabel til 230v tilslutning, og hjulnøgle til støtteben. Om vinteren er det nødvendig med varmesikring.

Vognen indeholder:

Toilet med kværn
Bord med 6 stole
Køleskab
Opslagstavle

El-radiator
Vindue


Pr. måned*

kr. 2.450,00

ekskl. moms

kr. 3.062,50

inkl. moms
*Eksklusive forsikring 7% & slutrengøring
Strømtilslutning 230v - 16A
Vandvarmer 15 liter
Udvendige mål (L x B x H) 420 x 228 x 290 cm
Egenvægt 950 kg
Totalvægt 1.300 kg