Skurvogn/Kontorvogn - 10 personer

5101 Skurvogn 2
5115+5116 Skurvogn 10 Persons 3
5115+5116 Skurvogn 10 Persons 2
5101 Skurvogn 3
5115+5116 Skurvogn 10 Persons 1

Skurvogn/Kontorvogn - 10 personer

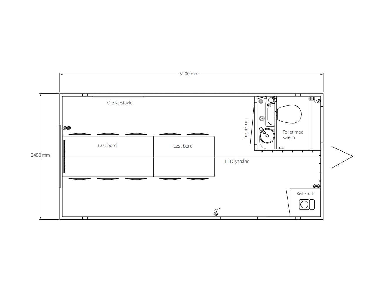
Mandskabsvogn/skurvogn/Spisevogn/kontorvogn til byggepladsen, med bord og stole til 10 personer, og derudover indeholder den et minikøkken/tekøkken med et køleskab og køkkenvask. Vognen indeholder også et toilet med kværn. 

Der medfølger op til 25 meter afløbsslange, 25 meter slange til vandtilslutning, 25 meter kabel til 230v tilslutning, og hjulnøgle til støtteben. Om vinteren er det nødvendig med varmesikring.

Vognen indeholder:

Toilet med kværn, bordplade m/vask og spejl
Fast bord 180 x 69 cm, til 6 personer
Løst bord 120 x 69 cm, til 4 personer
Mini-/tekøkken med vask & køleskab
Opslagstavle

2 x El-radiator
Vindue


Pr. måned*

kr. 2.750,00

ekskl. moms

kr. 3.437,50

inkl. moms
*Eksklusive forsikring 7% & slutrengøring
Strømtilslutning 230v - 16A
Vandvarmer 15 liter
Udvendige mål (L x B x H) 520 x 248 x 294 cm
Egenvægt 1.250 kg
Totalvægt 1.500 kg