Pionervogn - 6 pers. m. tanktoilet & solceller

5130 Pionervogn M. Tank 6
5130 Pionervogn M. Tank 3
5130 Pionervogn M. Tank 1
5130 Pionervogn M. Tank 2
5130 Pionervogn M. Tank 4
5130 Pionervogn M. Tank 5

Pionervogn - 6 pers. m. tanktoilet & solceller

Pionervogn/skurvogn/Spisevogn/kontorvogn, perfekt til byggepladsen eller et andet sted hvor du ikke har mulighed for tilslutning til strøm. Vognen har en varmeovn og et køleskab som kører på gas, samt et tanktoilet med vandstander, så du behøver derfor ikke at tilslutte den til strøm. 
Den har derudover solceller på taget som bruges til at drive lyset inde i vognen, samt pumpen til vandhane ved håndvask. Der er også 230V/16A indtag så det er muligt at tilslutte strømkabel, hvis dette ønskes. 

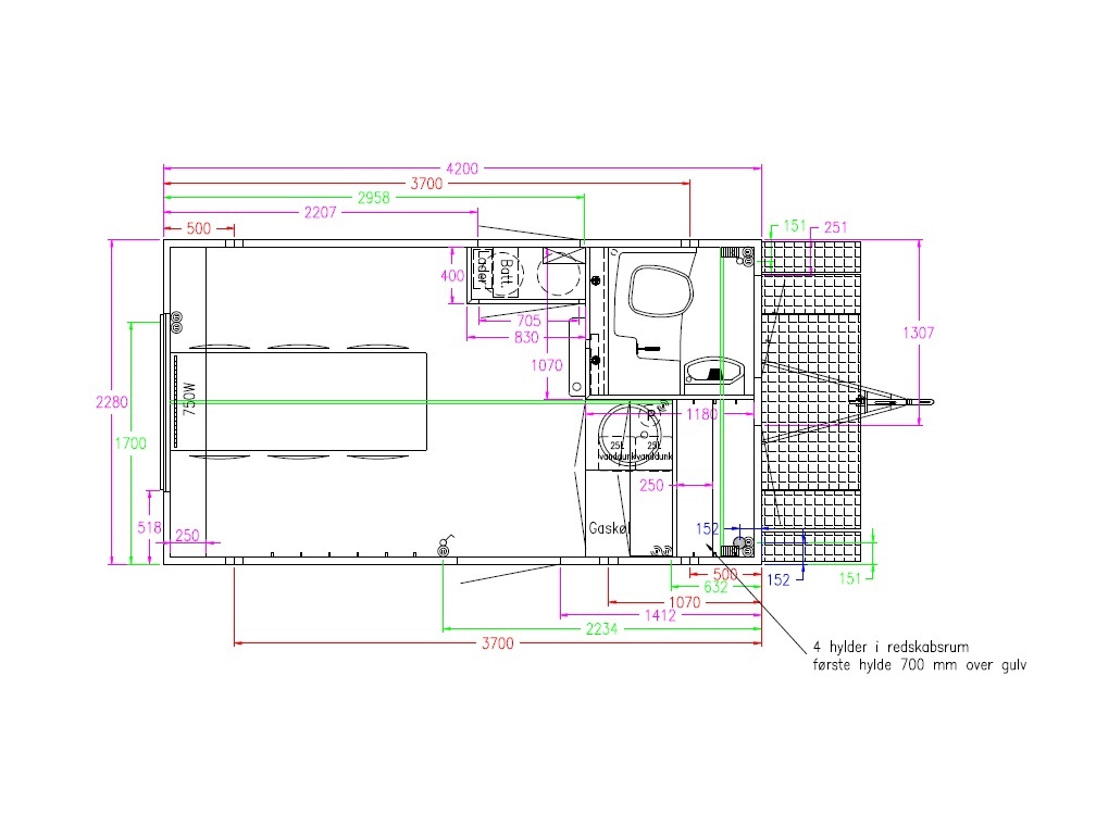
Vognen har følgende:

Tekøkken med håndvask
Bord med 6 stole
Opslagstavle
Vindue
Tanktoilet og vandstander

Gaskøleskab
Gasovn
Teknikskab til gasflaske
Solceller, batteri og lader
Redskabsrum med 4 hyller
El-radiator


Pr. måned*

kr. 3.900,00

ekskl. moms

kr. 4.875,00

inkl. moms
*Eksklusive forsikring 7% & slutrengøring
Drivkraft Solceller/Gas/230V
Udvendige mål (L x B x H) 420 x 228 x 290 cm
Egenvægt 1.300 kg