Miljøvogn - 4 personers

3150 Miljøvogn (1)
3150 Tegning
3150 Miljøvogn (7)
3150 Miljøvogn (10)
3150 Miljøvogn (11)
3150 Miljøvogn (15)
3150 Miljøvogn (16)
3150 Miljøvogn (17)

Miljøvogn - 4 personers

Lej en miljøvogn/Miljø-mandskabsvogn.

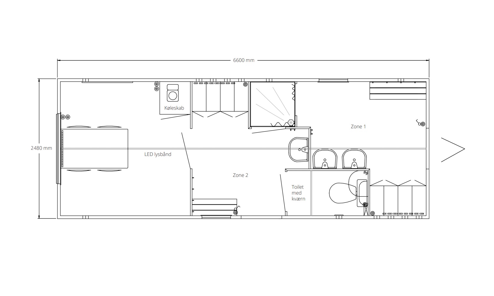
Vognen er delt op i 2 afdelinger. Afdeling 1 er beregnet til opbevaring af
snavset arbejdstøj og indeholder 4 stålskabe, 2 håndvaske og en bruseniche.
Afdeling 2 har 4 stålskabe til opbevaring af rent tøj, et spiserum med køleskab, samt et toilet. De to afdelinger er forbundet, så man let kan bevæge sig fra den ene til den anden.

Når der arbejdes med giftige eller bakteriefyldte stoffer på byggepladser eller lignende, er det et krav, at der stilles en miljøvogn til rådighed. Den anvendes derfor ofte til arbejde, som involverer olie, epoxy og asbest.


Lejepris pr. dag*

kr. 350,00

ekskl. moms

kr. 437,50

inkl. moms
*Eksklusive 7% forsikring og rengøring - mindste lejepris kr. 3.500,00
Lejepris pr. måned*

kr. 6.500,00

ekskl. moms

kr. 8.125,00

inkl. moms
*Eksklusive 7% forsikring og rengøring