Badmobil, bad- og toiletvogn

5001 Badvogn 7
5001 Badvogn 6
5001 Badvogn 4
5001 Badvogn 5
5001 Badvogn 3
5001 Badvogn 2
5001 Badvogn 1

Badmobil, bad- og toiletvogn

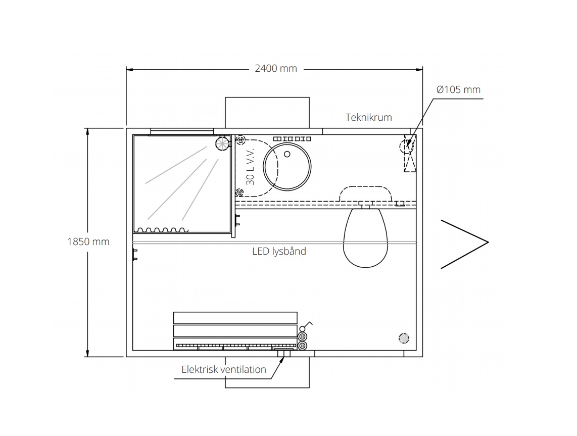
Toiletvogn/badvogn/badmobil eller mobilt badeværelse er ideel ved renovering af badeværelse, ombygning og lignende, eller hvis du skal bruge et ekstra badeværelse på byggepladsen eller til dine gæster når du holder fest.

Nem at opstille og tilslutte til eksisterende kloakanlæg. Vi har både badvogne med kværn, hvor du skal føre en afløbsslange ned i en nærvedliggende kloak, og så har vi vogne med fast kloaktilslutning, hvor vognen skal tilsluttes et 110 mm kloakrør. 

Til vognen medfølger op til 25 meter afløbsslange, 25 meter slange til vandtilslutning, hjulnøgle til støtteben og et 25 meter strømkabel som både kan tilsluttes 230v og 400v. Om vinteren er det nødvendig med varmesikring. Med en egenvægt på 750 kg kan vognen transporteres af de fleste biler med anhængertræk, ellers tilbyder vi også levering.

Vognen indeholder:

Toilet med kværn
Brusekabine
Bord med håndvask
Spejl
Bænk
El-radiator
Lille vindue


Lejepris pr. måned*

kr. 2.450,00

ekskl. moms

kr. 3.062,50

inkl. moms
*Eksklusive forsikring 7% & slutrengøring
Rengøring af badmobil*

kr. 550,00

ekskl. moms

kr. 687,50

inkl. moms
*Vejledende pris
Strømtilslutning 230v eller 400v
Vandvarmer 30 liter
Udvendige mål (L x B x H) 360 x 220 x 280 cm
Indvendige mål (L x B x H) 230 x 175 x 210 cm
Egenvægt 750 kg